Who We Are

International Floorplans (Pvt) Ltd, a wholly-owned British company, was Incorporated in August 2001, with the guidance, support and approval of the Sri Lankan Board of Investment.

Initially envisaged as a supplier of floor plans primarily for the UK property sales market, it has already diversified both in types of products and whereabouts of clients, producing nearly 3 million square feet of plans monthly.

A truly international company, IFPL produces plans for clients across America, Europe, Asia and Australasia. In order to reach this global market, Colombo, capital of Sri Lanka, was strategically chosen not only to gain advantage of the time zones but also of the highly-trained English-speaking skilled CAD operators

We having been producing floorplans under RICS guidelines since 2001, we have a great deal of experience and can produce many different types of plans for different purposes from different sources.

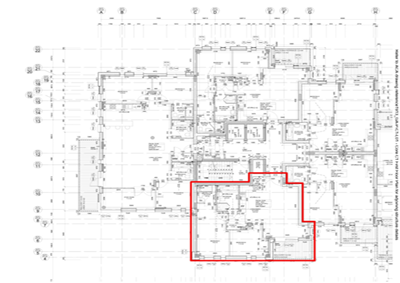
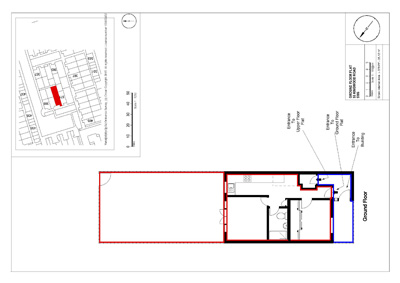
Once your architect’s plan for a new development has been approved by the relevant planning authorities, we understand that you need simple user-friendly floorplans derived from the more complex development plans quickly in order to start marketing your development.

Send or email us your approved development plan, tell us which individual plans you want and we will get back to you with a price per unit and expected production time within 24 hours.

Download Our Brochure -

Why IFPL


  • Our staff consists of highly trained CAD professionals drawn from recognized technical colleges.
  • In-house training is provided to the staff with continuous evaluation.
  • Periodic monitoring and evaluation by UK staff.
  • Availability of a representative in London office who constantly updates the latest guide line changes and assists in dealing with any problems.
  • Flexibility & great customer care.
  • We are the longest-operating floor plan company in Sri Lanka with a loyal client base.
  • Free amendments


  • We Have the most experienced CAD professionals in floor plan development with the ability to draw a single bedroom studio flat as well as a complex property such as a Leisure complex, a hospital,or a care home with unmatched accuracy & consistancy.
  • Only make promises that we can keep.
  • 24hr turn around time( for real estate plans) - Subject to the size/complexity of the property. ( Obviously an over 200000sqft leisure complex can't be completed in 24hrs)
  • We are not just a floor plan development company serving the real estate market but a multidisciplinary company with the ability to produce much complex and accurate design plans for Architects , Interior designers, builders, Planinig Authorities, Solicitors, Engineers etc..

Features

B&W Plans

Colour Plans

Virtual Plans

Property address

North point

Room names

Room Dimensions

Internal/External area

Disclaimer

Hatching/shading for external/wet areas/decks

**Plants/trees/flowerbeds / Swimming pools etc

Cars in car port/garage

Site Plans

*Client logo

Entrance arrow

*Watermark

*Furniture

Ceiling heights Chargers Apply
* Upon request - free of charge
** charges apply depending on the size of the property/ complexity of the design

Charges

Due to the huge diversity of work we produce, each differs in complexity, so that a standard rate-card is misleading. Each client’s needs are assessed independently and priced according to the product required, the volume of business and security of contract.

We are confident that we would not have either the quantity or quality of the clients that we do unless our service was highly competitive both in our standards and price

You can make the payment now ...

IFPL Team

A combined experience of over 40 years in management, Property marketing & client relations has brought IFPL to its present position of strength over its rivals. It consists of dedicated professions who are trained in Floor Plan development & image retouching. Our core strength is our staff.

Marketing

European market is handled in London while American & Australian markets are handled by the Colombo office.

Production

Every sketch we receive goes through a strict quality control process consisting of 3 layers before the finished plan is sent to the client

Our Partners

The International Floor Plans is a truly international company, IFPL produces plans for clients across America, Europe, Asia and Australasia.



Testimonials

" Dear Gamini,
I wanted to thank you & your team for the work you have undertaken for me regarding my architect plans. The standard of work has been excellent and I have been extremely pleased with the quick response to my initial enquiry, the professional standard of drawings produced and the subsequent amendments you have made to the drawings, particularly the speed of your responses. The costs really have represented good value for money." – Peter

" Dear IFPL,
I would just like to thank you for doing an excellent job on these photos. The customer was really demanding and I really appreciate the work you did on these, leaving the images looking natural but boosting whites and shadows etc" – Ben

" Hi,
I just wanted to say what a great job you did on the last two lease plans. My client was very very impressed and this has lead us to securing their contract." – Stuart


Contact Us

--- SRI LANKA ---

Tel : +94 335 625 923
Fax : +94 335 625 924

--- UNITED KINGDOM ---
Tele : (44) 20 7978 4284

Join with us/ View our Partners All Partners